Projektiranje sustava


AVR ima više od 20 godina iskustva u projektiranju, dizajnu i integraciji audio-video sustava. Nudimo kompletnu uslugu od idejnog rješenja i pomoći pri odabiru odgovarajuće opreme do instalacije, održavanja iste te edukacije korisnika.

 

Projektiranje, dizajn i implementacija profesionalnih audio-video sustava 

Specijalizirani smo za projektiranje, dizajn i integraciju naprednih audio-video sustava za poslovne prostore, konferencijske dvorane, kućna kina, digitalno oglašavanje i nadzorne sobe.

📩 Zatražite besplatne konzultacije – kontaktirajte nas putem obrasca ili telefona.

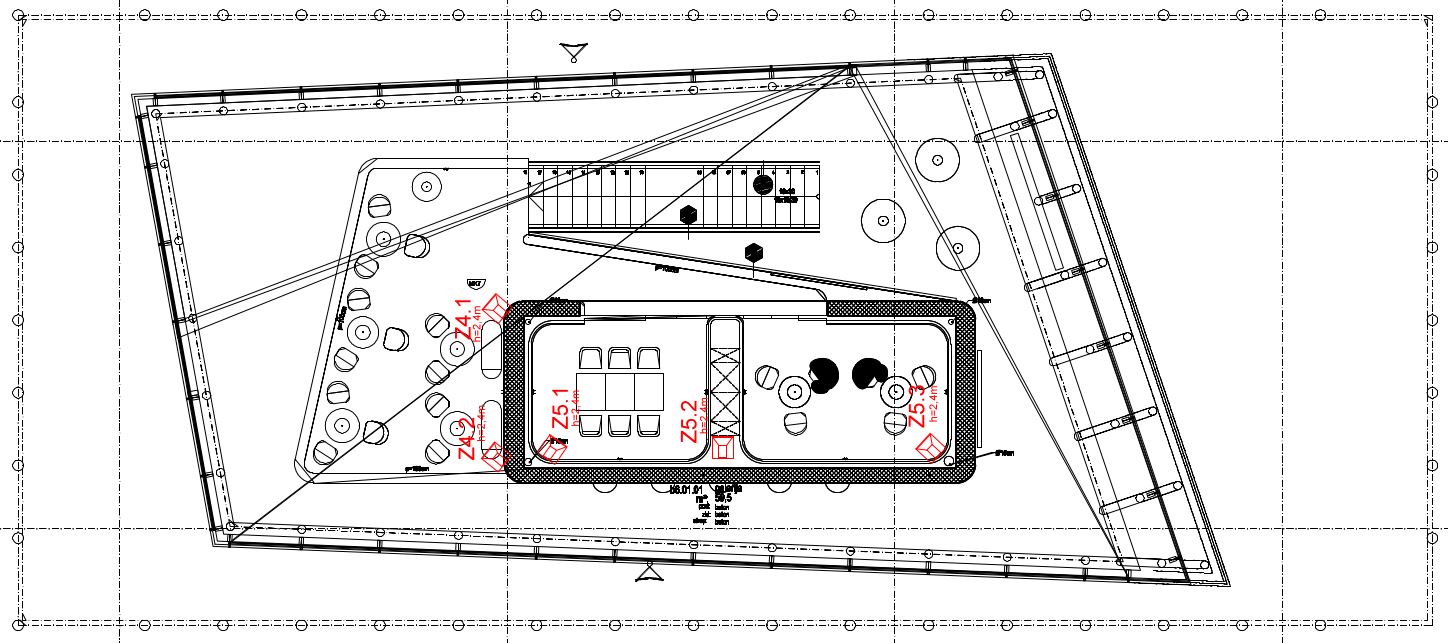
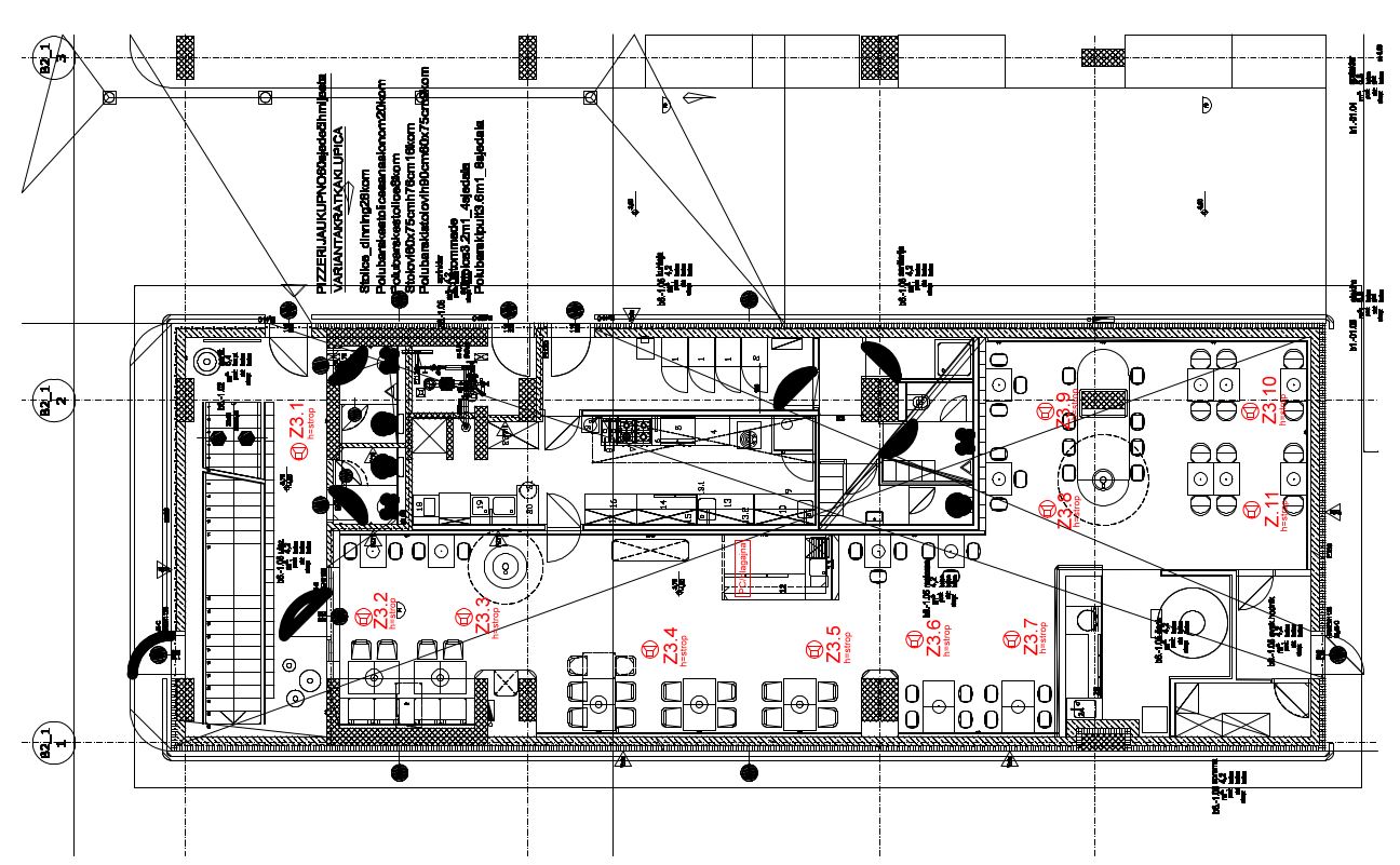
Tehnički nacrt ozvučenja poslovnog prostora

 

AV sustavi za poslovne prostore i privatne korisnike


Detaljna analiza prostora i profesionalni AV dizajn 

Prije izrade ponude provodimo detaljan izvid prostora, precizne izmjere, analizu akustike i razgovore s investitorima kako bismo prilagodili sustav stvarnim potrebama.

📐 Zakažite neobvezujući pregled prostora.

 

Suradnja sa stručnjacima i izvedba po mjeri 

U svim fazama projekta surađujemo s arhitektima, dizajnerima interijera, elektromonterima i drugim izvođačima kako bi se AV rješenja savršeno uklopila u prostor – estetski i funkcionalno.

Poslovni prostor opremljen profesionalnom audio video opremom

 

Više od 20 godina iskustva u AV industriji

Naš tim kombinira tehničko znanje, inovacije i iskustvo kako bismo isporučili visokokvalitetne sustave za:

✔️ konferencijsku tehnologiju

✔️ sustave za prezentacije i poslovne prostore

✔️ profesionalna kućna kina

✔️ AV opremu za digitalno oglašavanje

✔️ nadzorne i kontrolne sobe

🎯 Pogledajte primjere naših rješenja. 

 

Tehnička dokumentacija i nacrti


Izrađujemo kompletnu projektnu dokumentaciju:

nacrte s rasporedom AV opreme

troškovnike i planove povezivanja

precizno ucrtane dimenzije multimedije i potrebnih priključaka

Tehnički nacrt audio-video sustava

📝 Zatražite potpunu dokumentaciju.

 

Gdje implementiramo multimedijalna rješenja 

Naša oprema i rješenja koriste se u:

✔️ Konferencijskim i korporativnim dvoranama

✔️ Učionicama i predavaonicama

✔️ Sustavima videozidova i digitalnog oglašavanja

✔️ Poslovnim prostorima i kućnim kinima

✔️ Nadzornim i kontrolnim sobama

Stručni tim instalirao profesionalni audio-video sustav za poslovni prostor

 

Zašto odabrati nas za dizajn i ugradnju multimedijalne opreme? 


• Preko 20 godina iskustva

• Više od 1000 uspješno završenih projekata

Kompletna usluga – od ideje do edukacije korisnika

Suradnja sa svim dionicima projekta

Optimizacija troškova bez gubitka kvalitete

• Stručna implementacija sustava za prezentacije i oglašavanje

 

Kontaktirajte nas za savjetovanje i ponudu 

Povjerite svoj projekt stručnjacima:

📞 Nazovite nas ili ispunite kontakt obrazac

📧 Pošaljite upit!